Zubau Tiroler Landhaus 1 / Innsbruck Arge Obermoser – Schlögl&Süß
Architektur, Austria, Tirol, Innsbruck, Architekt, Johann Obermoser
16630
portfolio_page-template-default,single,single-portfolio_page,postid-16630,bridge-core-2.6.6,,qode-theme-ver-25.1,qode-theme-bridge,disabled_footer_bottom,qode_header_in_grid,wpb-js-composer js-comp-ver-6.6.0,vc_responsive

Zubau Tiroler Landhaus 1 / Innsbruck Arge Obermoser – Schlögl&Süß

Arge Obermoser / Schlögl & Süß

Projektbeschreibung


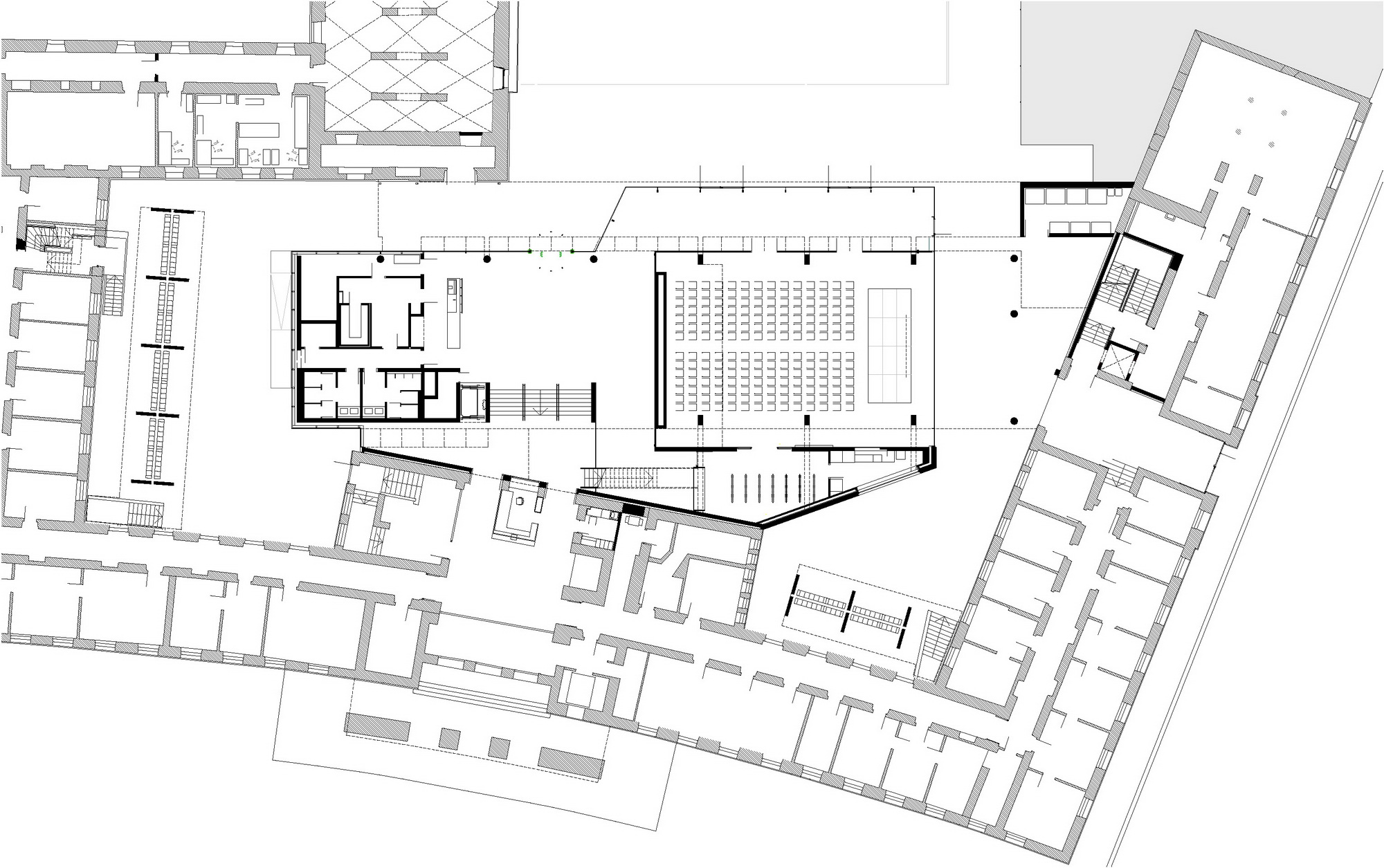
Der siegreiche Wettbewerbsbeitrag der ARGE Obermoser und Schlögl & Süß ermöglicht die strukturelle Neuordnung der Baukörper und Höfe. Der Neubau nimmt die Richtung des Gumpp‘schen Landhauses auf und begrenzt den großzügigen Hof an der Südseite.
Der halbseitige im Osten befindliche Dachaufbau dient hofseitig als Klammer zur gerade fertig gestellten Eckverbauung der Hypo-Tirol-Zentrale.
Der 7-geschossige Neubau fügt sich als schlanker Baukörper in den Landhaushof ein. Die Situierung des Bürogebäudes parallel zum bestehenden Landhaus schafft einen attraktiven Platz, der sich einerseits zur Vorzone des nordseitigen Landhaus-Einganges weitet, andererseits für diverse Veranstaltungen des Landes zur Verfügung steht. Neben den Büroflächen in den Obergeschossen befinden sich im Erdgeschoss das große Foyer und der multifunktionale, zweigeschossige Veranstaltungssaal mit Galerie, der sich über breite Türen zum Platz hin öffnen lässt.
Gegenüber der massiven Blockrandbebauung erhält der Hof-Neubau durch seine gegliederte Alu-Glasfassade ein kontrastierendes, auf die Entstehungszeit verweisendes Erscheinungsbild.

 

Technische Daten


  • Bauherr: Landhaus 1
  • Architekt: Arge Johann Obermoser / Hanno Schlögl & Daniel Süß Architekten
  • Standort: Wilhelm Greil Strasse, Innsbruck, Tirol
  • Fertigstellung: 2008
  • Mitarbeiter: Andreas Norz, Hanspeter Freisinger
  • Fotos: M. Bstieler

Date
Category
Alle, Bürobauten, Öffentliche Bauten

Diese Website verwendet Cookies – nähere Informationen dazu und zu Ihren Rechten als Benutzer finden Sie in unserer Datenschutzerklärung am Ende der Seite. Klicken Sie auf „Ich stimme zu“, um Cookies zu akzeptieren und direkt unsere Website besuchen zu können, oder klicken Sie auf „Cookie Einstellungen“, um Ihre Cookies selbst zu verwalten. Weitere Informationen

Die Cookie-Einstellungen auf dieser Website sind auf "Cookies zulassen" eingestellt, um das beste Surferlebnis zu ermöglichen. Wenn du diese Website ohne Änderung der Cookie-Einstellungen verwendest oder auf "Akzeptieren" klickst, erklärst du sich damit einverstanden.

Schließen