Projektbeschreibung
Die Erreichbarkeit von Berggipfeln entspricht als Folge des Klimawandels einer Tendenz im alpinen Raum.
Beauftragungen bzw. Studien für Seilbahnprojekte und Wettbewerbe im Inland und Ausland erfolgen nahezu kontinuierlich, da derzeit ein hoher Bedarf an hochmodernen Anlagen besteht.
Besondere Herausforderungen sind:
– Der behutsame Umgang mit den natürlichen Begebenheiten in Anbetracht der zu bewältigenden großen Volumina der baulichen Anlagen und Stationsgebäude.
– Die Umsetzung dieser Gegebenheiten in ein architektonisch anspruchsvolles „Landmark“ als wichtige Voraussetzung für den Wiedererkennungswert einer Region.
– Die gesamten technischen Herausforderungen wie: Bauen im Permafrost, Fels und Eis in hochalpinem steilen Gelände verlangen architektonische Lösungen, die auf die spezifische örtliche Herausforderungen reagieren.
– Die Integration modernster Technik, um Erreichbarkeit zu sichern und Wartezeiten zu optimieren beziehungsweise zu vermeiden.
Architektur entsteht immer als funktionelle Umsetzung der technischen Anforderungen, in Bezug auf die landschaftlichen Gegebenheiten und unter hohem Einfluss von ästhetischen Ansprüchen.
Bei Seilbahnprojekten spielt zusätzlich Technik eine wichtige Rolle, die Seilbahntechnik beeinflusst und animiert die Entwurfsgedanken von Anfang an.
Gestaltungskriterien wie bauphysikalische Notwendigkeiten (thermische und akustische Anforderungen), die bei anderen baulichen Anlagen genauestens geregelt sind, müssen für das Bauen in extremen Lagen neu entwickelt werden.
Deshalb fordert jedes Projekt spezielle Planungsmaßnamen und teilweise spektakuläre Aktionen in der Ausführung.
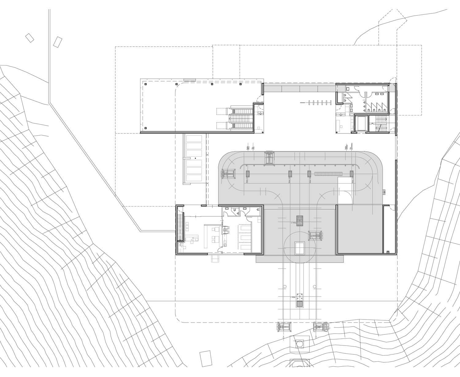
Talstation
Die Architektur wird von der Beengtheit des Bauplatzes und der neuen Seilbahntechnik bestimmt. Die Einstiegsebene wurde daher auf 13m angehoben und ermöglicht ein Gebäude mit kleinstmöglichem Fußabdruck am Grundstück.
Der massive und turmartige Gebäudekern aus eingefärbtem Beton nimmt die Seilbahntechnik auf und ist weithin als Landmark sichtbar. Die erhöhte Einstiegsebene verschwindet hinter einem bildperforierten Band mit Bergpanorama der Ötztaler Alpen. Die Verspiegelung der auskragenden Untersicht der Einstiegsebne erzeugt eine Illusion der Leichtigkeit und verstärkt damit Massivität und Schwere des Gebäudekerns mit seiner gefrästen und hydrophobierten Oberfläche. Die durch das Fräsen erzeugte gebrochene Körnung lässt die in der Nacht angestrahlte Betonschale schimmern, Lichteffekte können zudem verschiedene Stimmungen im Panoramabild simulieren.
Zwei Rolltreppen verbinden die gedeckte Platzebene mit der Stationsebene, die auch direkt an Schipiste und Parkhaus angeschlossen ist. Der erforderliche Spannschacht wurde als architektonisch eigenständiges Element inszeniert.
Bergstation
Ein aus dem Boden wachsender Betonsockel nimmt die notwendigen Funktionen auf. Darüber schwebt als Wetterschutz eine transparente, folienbespannte Stahlkonstruktion, welche die Dimension der Bergstation in der Landschaft verschwinden lässt.
Die Garagierung der 10er-Kabinen erfolgt in der Konstruktion des Wetterschutzes über der Stationsebene. Diese Art der Garagierung vermeidet zusätzliche Kubaturen in der Landschaft.
Ein Tunnel verbindet das 200m entfernte Restaurant mit der Station und gewährleistet eine wetterunabhängige Ver- und Entsorgung.
4500 Personen/h Förderleistung der 10-EUB eröffnet neue Dimensionen von Kapazität und Komfort.
Wartezeiten gehören der Vergangenheit an.
proHOLZ Tirol – Tischlerpreis
Im Rahmen des Wettbewerbes proHOLZ Tischlerpreis 2021 konnte die Firma Spechtenhauser / Innsbruck den ersten Preis für die ausgeklügelte Konstruktion des gerundeten Kastenfensters im Büro der Talstation gewinnen. Wir gratulieren recht herzlich!
Technische Daten
- Auftraggeber: Ötztaler Gletscherbahn Ges.mbH & Co KG
- Standort: Sölden, Tirol
- Fertigstellung: 2016
- Mitarbeiter: Christoph Neuner, Christof Künz, Andreas Norz, Lukas Trenkwalder
- Renderings: Harald Brutscher
- Fotos: David Schreyer