Der Entwurf für den Neubau der Volksschule Angedair nimmt die Kubatur bzw. die Wandhöhen des zweigeschossigen historischen Baukörpers auf. Somit ergeben sich wieder die ausgewogenen ursprünglichen stadträumlichen Perspektiven auf die südöstlich gelegene Pfarrkirche und das südlich gelegene Schloss Landeck.
Der Fußabdruck des Gebäudes liegt innerhalb der raumplanerisch vorgegebenen Stadtkanten, nach Westen wird der Raum zu den bestehenden Häusern aufgeweitet und begradigt.
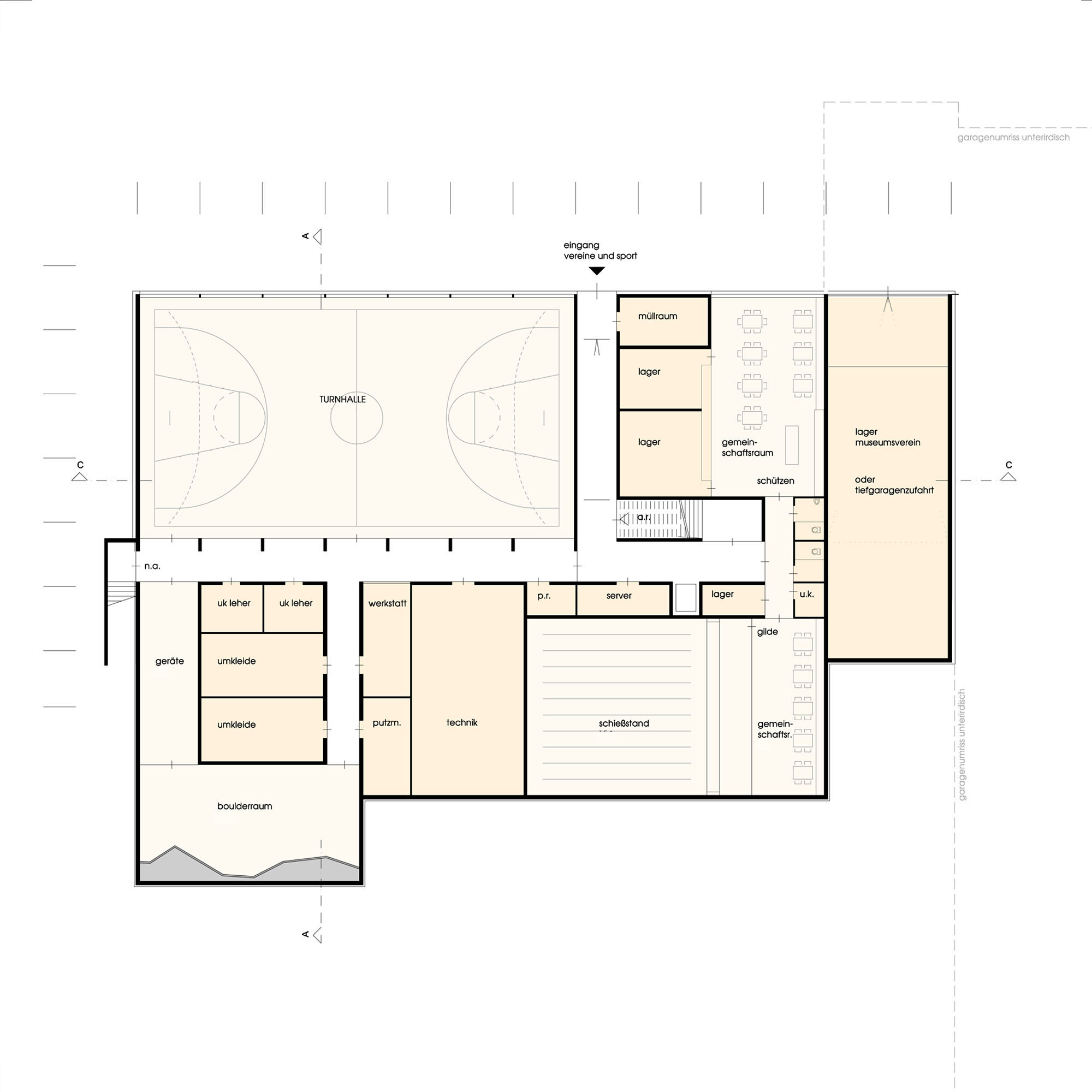
Der in den Geländeverlauf eingebettete Sockel mit konturgleichem Erdgeschoss läßt die Gebäudefunktionen sofort erkennen. Der Zugang zum Museumsvereinslager, zu den ereinsräumlichkeiten, der Boulderhalle und zur externen Nutzung der Turnhalle erfolgt barrierefrei westseitig im Sockelgeschoss. Der Eingang der neuen Volksschule und der Stadtbücherei liegen ostseitig mit direktem Parkbezug.
Durch die Auskragung der Obergeschosse ost- und westseitig werden die Gebäudezugänge betont. Zudem erhält das Erdgeschoss einen natürlichen Sonnenund Wetterschutz.
Der Schulplatz wird neu definiert. Eine homogene Oberflächengestaltung ermöglicht unterschiedlichste Nutzungen. Der Übergang zum Park erfolgt weich. Die bestehenden Gehsteige werden durch den Grünraum geführt. Die großzügige Schulplatzsituation ermöglicht einen engeren Austausch Der Übergang vom Grünraum zur Stadtbücherei und Volksschule erfolgt fließend.
Turnsaal, Aula und Musikzimmer können für gemeinsame Schulveranstaltungen genutzt werden. Das Erdgeschoss wird somit zu einem vielfach bespielbaren, halböffentlichem, nach Bedarf auch öffentlichem Raum.
2014
Diese Website verwendet Cookies – nähere Informationen dazu und zu Ihren Rechten als Benutzer finden Sie in unserer Datenschutzerklärung am Ende der Seite. Klicken Sie auf „Ich stimme zu“, um Cookies zu akzeptieren und direkt unsere Website besuchen zu können, oder klicken Sie auf „Cookie Einstellungen“, um Ihre Cookies selbst zu verwalten. Weitere Informationen
Die Cookie-Einstellungen auf dieser Website sind auf "Cookies zulassen" eingestellt, um das beste Surferlebnis zu ermöglichen. Wenn du diese Website ohne Änderung der Cookie-Einstellungen verwendest oder auf "Akzeptieren" klickst, erklärst du sich damit einverstanden.