WB Haus der Musik / Innsbruck
Architektur, Austria, Tirol, Innsbruck, Architekt, Johann Obermoser
17047
portfolio_page-template-default,single,single-portfolio_page,postid-17047,bridge-core-2.6.6,,qode-theme-ver-25.1,qode-theme-bridge,disabled_footer_bottom,qode_header_in_grid,wpb-js-composer js-comp-ver-6.6.0,vc_responsive

WB Haus der Musik / Innsbruck

Projektbeschreibung


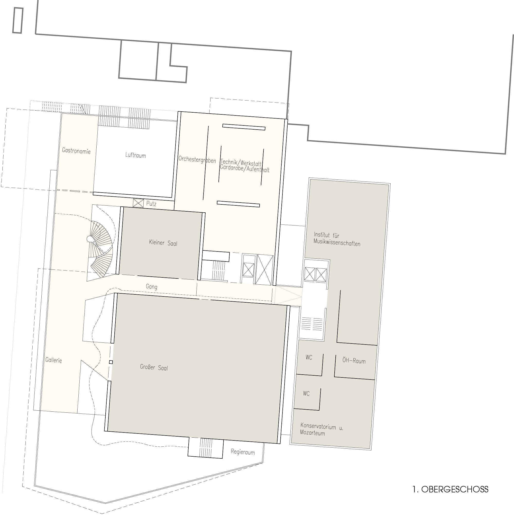
Das „Haus der Musik in Innsbruck“ soll sich als „offenes Haus“ präsentieren.

Die verschiedenen Funktionen kommunizieren mit dem Stadtraum und den Besuchern und sind als differenzierte Baumasse in den unterschiedlichen Funktionen sowohl im Innen- als auch im Außenraum signifikant erkennbar.
Der Stadtraum fließt nahezu übergangslos in das großzügige Foyer ein. Das Foyer ist nicht nur Kommunikationsbereich, sondern vom Foyer aus werden die Besucher in sämtliche Veranstaltungsbereiche der unterschiedlichen Ebenen, durch visuell prägnant erkennbare Wegführungen geleitet. Somit erstreckt sich der Platz durch das Gebäude bis zu den universitären
Einrichtungen – Musikwissenschaften – Konservatorium – Mozarteum, den Räumlichkeiten der Festwochen der Alten Musik, sowie der Vereine.
Die Hauptorientierung des Foyers ist Richtung Hofburgvorplatz. Das zweigeschossige Foyer wird zur Bühne der Funktionen, Besucher und Betrachter.

Die Kammerspiele sind bewusst vom Boden / Untergeschoss angehoben um die Hierarchie derFunktion zu verdeutlichen. Außerdem bildet der Korpus der Kammerspiele den südlichen Rahmen für das Tiroler Landestheater und die markante Trennung zwischen alt und neu an prominenter Stelle.

Der Saal des Tiroler Symphonie Orchesters Innsbruck ragt von oben aus dem ihn umschließenden Luftraum frei in das Foyer hinein. Er stellt somit das Herzstück des „Hauses der Musik in Innsbruck“ dar.

Die Bibliothek sitzt am Eck des Foyers. Sie soll den offenen Charakter unterstreichen und leitet zu den universitären Einrichtungen über.Der kubische Baukörper, in dem die universitären Einrichtungen und Räumlichkeiten der Festwochen der Alten Musik, sowie der Vereine untergebracht sind, bildet das Rückgrad des „Hauses der Musik in Innsbruck“.

Zwischen Bibliothek und großem Vorlesungssaal und den universitären Einrichtungen wurde bewusst eine enge Gasse angesetzt. Über diese Gasse hinweg wird durch die Nähe die Verbindung
dieser Institutionen räumlich erzielt. Beim passieren dieser Gasse treten sowohl der Saal des TSOI als auch der Baukörper der Universität prägnant in Erscheinung.

Schon am Eingang der Universität befindet sich zweigeschossig der große Veranstaltungssaal des Konservatoriums und des Mozarteums. So kommuniziert dieser Raum ebenfalls mit dem Stadtraum der Universitätsstraße.

Um die Typologie der springen Traufenhöhen der Universitätsstraße auch beim neuen Baukörper maßstäblich fort zu setzten, ist die Dachlinie auf bestehende Proportionen abgestimmt.
Unter den „schwebenden“ Kammerspielen liegen die Flächen der Gastronomie und orientiert sich zum Vorplatz der Hofburg und des Landestheaters. Die Bauflucht der Kammerspiele orientiert sich am Portikus des Landestheaters.

Eine deutliche Rückversetzung des „Hauses der Musik in Innsbruck“ gegenüber dem derzeitigen Bestand des Stadtcafes erweitert den Vorplatz und verstärkt so die Präsenz der Hofkirche und des Volkskundemuseums am Stadtraum, gleichzeitig wird die Angerzellgasse mit dem gesetzten Gebäudeknick in der Universitätsstraße Richtung Sillgasse umgelenkt.
Durch die Erweiterung des Platzes Richtung Angerzellgasse wurde eine verkehrsberuhigende Maßnahme erzwungen.
Die Naturdenkmäler (Blutbuche, Säuleneiche, Schwarzkiefer) als auch der Brunnen genießen durch die Erweiterung des Platzes den ihnen gebührenden Respekt und stellen nun mehr markante
Stadtsignale dar.

Technische Daten


  • Auftraggeber: IIG – Innsbrucker Immobilien GmbH & Co KG
  • Standort: Universitätsstraße, Innsbruck
  • Grundstücksfläche: 5.688 m²
  • Nutzfläche: ca. 8.500 m²
  • Brutto Rauminhalt: ca. 55.900 m³
  • Wettbewerb: 2014
  • Mitarbeiter: Daniel Wenter, Thomas Gasser
  • Renderings: Harald Brutscher

Date
Category
Wettbewerbe

Diese Website verwendet Cookies – nähere Informationen dazu und zu Ihren Rechten als Benutzer finden Sie in unserer Datenschutzerklärung am Ende der Seite. Klicken Sie auf „Ich stimme zu“, um Cookies zu akzeptieren und direkt unsere Website besuchen zu können, oder klicken Sie auf „Cookie Einstellungen“, um Ihre Cookies selbst zu verwalten. Weitere Informationen

Die Cookie-Einstellungen auf dieser Website sind auf "Cookies zulassen" eingestellt, um das beste Surferlebnis zu ermöglichen. Wenn du diese Website ohne Änderung der Cookie-Einstellungen verwendest oder auf "Akzeptieren" klickst, erklärst du sich damit einverstanden.

Schließen